A2167215 - Unit #200 68, 7930 Bowness Road NW, Calgary, Alberta T3B0H3




SCHEDULE PRIVATE TOUR

We will work around your timelines. First choose the date below.





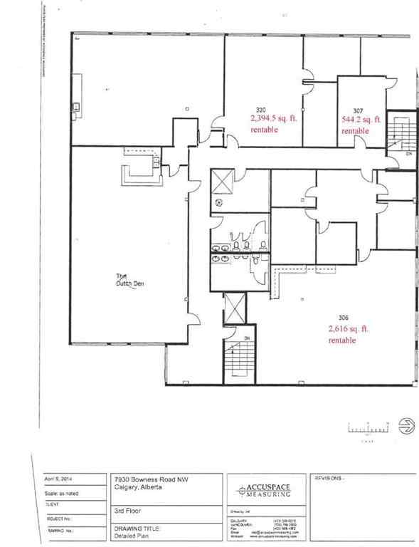
Entire 2nd floor, 7,481 sq. ft. of secure well developed space with abundant natural light, formerly occupied by Child and Family services. 3rd floor suite of 2,394 sq. ft., can be subdivided. Elevator access, excellent parking, below market rates including utilities, and great Bowness Road location. 3 story retail /office building with elevator access. Landlord completing upgrades to common areas. Accessible location with public transit and close proximity to Hwy 1, Sarcee Trail, Stoney Trail, Crowchild Trail and Downtown. Ample front parking.

DOWNLOAD Feature sheet

ESSENTIAL
MLS®:A2167215
Price:12.00
Type:Commercial
Sub Type:Office
RestrictionsNone Known
DOM412
INTERIOR SNAPSHOT   
Sq Ft:7,481


COMMUNITY DETAILS
Address:Unit #200 68, 7930 Bowness Road NW, Calgary, Alberta T3B0H3
City:Calgary
Subdivision:Bowness
County:Calgary
Province:Alberta
Postal Code:T3B0H3
School: Schools
Housing:Housing Market
Statistics:Real Estate Statistics
EXTERIOR
Year Built:1978
Structure Type:Low Rise (2-4 stories)
ROOM DIMENSIONS


Inclusions: NA



Courtesy: Century 21 Bamber Realty LTD.








Contact Information

  Big John Peterson - RE/MAX Realty Professionals
Cell: 403-244-5646
Office: 403-244-5646
(141 Reviews) full starfull starfull starfull starhalf star
Reviews
VIEW PROFILE



Question and Private Showing Requests

Book a Showing
General Question
Property Updates
Make an Offer
Buy a Property
Sell a Property
Financing infomation









Mandatory fields marked *

Information

(999) 999-9999

(weekdays 9-5pm)

Preferred Time


at

at

Security Code Calgary homes
Enter the letters below





Recent Customer Reviews
full starfull starfull starfull starfull star
We would highly recommend Big John and his team. Selling a property can be highly stressful. They alleviated much of that stress by keeping us informed throughout the whole process. Their professional advice was invaluable. We truly appreciated all of the team and thank them for their service
Rick B

full starfull starfull starfull starfull star
We had a great experience years ago when Big John was our realtor of choice. Some things have changed but, Big John was every bit as professional now as years ago, Thanks to technology, the photos, video and brochures were absolutely great! When we saw our home on the website, we wanted to buy it. The showing process was also excellent. Easy to approve a showing and easy for us to make arrangements. Hopefully, we won't need Big John's services any time soon but, we will definitely recommend him and his team to anyone that should ask. Thank you for making the experience a positive one. Best regards Jim and Leslie G.
Jim and Leslie G.


Bowness Housing Trends


Real Estate Listings: 63
Highest Price: $3,150,000.00
Lowest Priced: $15,000.00
Average Price: $755,668.62
Land: 2
November 5th 3:40am

Agent reviews Cell: 403-244-5646
Office: 403-244-5646

(141 Reviews)
full starfull starfull starfull starhalf star
My Reviews
Write a Review
View My Profile





Contact Big John Peterson


More Information
Make an Offer
Buy a Property
Sell a Property
General Questions
Financing Options

Bowness homes
Enter the letters below






FAQs about Unit #200 68, 7930 Bowness Road NW, Calgary,
Alberta, T3B0H3

Unit #200 68, 7930 Bowness Road NW MLS® A2167215 has an approximate size of 0 Sq. Ft. located in Bowness.

Nearby schools include read Schools & resources

There are 0 bedrooms and 0 bathrooms in this Commercial listing at Unit #200 68, 7930 Bowness Road NW, MLS® A2167215.

This Commercial listings is priced at $12.

This property is located at Unit #200 68, 7930 Bowness Road NW, Calgary, Alberta, T3B0H3 in the Bowness community on the market for 412 days. View location on Google maps.

You can find new community resources, emergency phone numbers, crime statistics, and local news, similar homes & real estate information on our Bowness community resources page.