A2264574 - Unit #101 11312 98 Avenue , Grande Prairie, Alberta T8V 8H4




SCHEDULE PRIVATE TOUR

We will work around your timelines. First choose the date below.





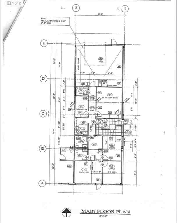
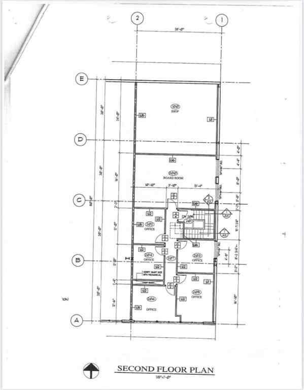
High quality industrial office & shop combo available for lease November 1, 2025. Well cared for unit offering up to 10 offices + boardroom, kitchen area, storage, reception split over two floors plus 24’ x 28’ 672SQ.FT. shop area with 14’ Overhead Door. The fully paved site offers good parking in front of the unit plus large parking/storage area to the rear of the unit, easy access from two sides allows for good turning & access points. This space is well located in Richmond industrial park on the west end of Grande Prairie which will provide easy access for staff & customers and put your operations right in the heart of one of Grande Prairie’s best locations. 3808SQ.FT.= BASE RENT($18.00) $5712.00/MTH + NET RENT($5.30) $1681.87/MTH: TOTAL MONTHLY COST= $7393.87 + GST. Tenant responsible for power & gas utilities. Good quality office/shop spaces are in high demand and this space will outshine others in the market as far as condition, location & functionality. Call a commercial Realtor today to arrange a viewing.

DOWNLOAD Feature sheet

ESSENTIAL
MLS®:A2264574
Price:18.00
Type:Commercial
Sub Type:Industrial
RestrictionsNone Known
DOM19
INTERIOR SNAPSHOT   
Sq Ft:3,808


COMMUNITY DETAILS
Address:Unit #101 11312 98 Avenue , Grande Prairie, Alberta T8V 8H4
City:Grande Prairie
Subdivision:Richmond Industrial Park
County:Grande Prairie
Province:Alberta
Postal Code:T8V 8H4
School: Schools
Housing:Housing Market
Statistics:Real Estate Statistics
EXTERIOR
Year Built:2003
Structure Type:Industrial
ROOM DIMENSIONS


Inclusions: N/A



Courtesy: RE/MAX Grande Prairie








Contact Information

  Big John Peterson - RE/MAX Realty Professionals
Cell: 403-244-5646
Office: 403-244-5646
(141 Reviews) full starfull starfull starfull starhalf star
Reviews
VIEW PROFILE



Question and Private Showing Requests

Book a Showing
General Question
Property Updates
Make an Offer
Buy a Property
Sell a Property
Financing infomation









Mandatory fields marked *

Information

(999) 999-9999

(weekdays 9-5pm)

Preferred Time


at

at

Security Code Calgary homes
Enter the letters below





Recent Customer Reviews
full starfull starfull starfull starfull star
We would highly recommend Big John and his team. Selling a property can be highly stressful. They alleviated much of that stress by keeping us informed throughout the whole process. Their professional advice was invaluable. We truly appreciated all of the team and thank them for their service
Rick B

full starfull starfull starfull starfull star
We had a great experience years ago when Big John was our realtor of choice. Some things have changed but, Big John was every bit as professional now as years ago, Thanks to technology, the photos, video and brochures were absolutely great! When we saw our home on the website, we wanted to buy it. The showing process was also excellent. Easy to approve a showing and easy for us to make arrangements. Hopefully, we won't need Big John's services any time soon but, we will definitely recommend him and his team to anyone that should ask. Thank you for making the experience a positive one. Best regards Jim and Leslie G.
Jim and Leslie G.


Richmond Industrial Park Housing Trends


Real Estate Listings: 3
Highest Price: $415,000.00
Lowest Priced: $2,500.00
Average Price: $212,466.67
Land: 3
November 4th 4:00pm

Agent reviews Cell: 403-244-5646
Office: 403-244-5646

(141 Reviews)
full starfull starfull starfull starhalf star
My Reviews
Write a Review
View My Profile





Contact Big John Peterson


More Information
Make an Offer
Buy a Property
Sell a Property
General Questions
Financing Options

Richmond Industrial Park homes
Enter the letters below






FAQs about Unit #101 11312 98 Avenue , Grande Prairie,
Alberta, T8V 8H4

Unit #101 11312 98 Avenue MLS® A2264574 has an approximate size of 0 Sq. Ft. located in Richmond Industrial Park.

Nearby schools include read Schools & resources

There are 0 bedrooms and 0 bathrooms in this Commercial listing at Unit #101 11312 98 Avenue , MLS® A2264574.

This Commercial listings is priced at $18.

This property is located at Unit #101 11312 98 Avenue , Grande Prairie, Alberta, T8V 8H4 in the Richmond Industrial Park community on the market for 19 days. View location on Google maps.

You can find new community resources, emergency phone numbers, crime statistics, and local news, similar homes & real estate information on our Richmond Industrial Park community resources page.