A2269316 - 216 Saddlecrest Way NE, Calgary, Alberta T3J 5N2




SCHEDULE PRIVATE TOUR

We will work around your timelines. First choose the date below.





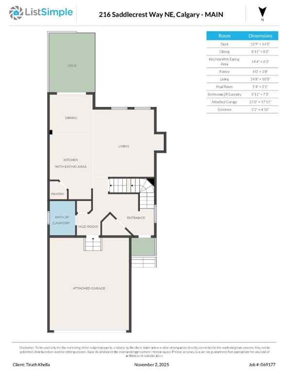
Welcome to this beautifully upgraded home located on a quiet street in the heart of Saddleridge. Thoughtfully designed with functionality and comfort in mind, this home offers an open-concept layout featuring 9 ft ceilings on the main floor, a spacious great room with a cozy gas fireplace, and a main floor laundry for added convenience.

The modernized kitchen showcases a central island, gas range with stainless steel appliances, and ample cabinetry—perfect for everyday cooking and family gatherings. Upstairs, all bedrooms are generously sized, including the primary suite with a walk-in closet and a 4-piece ensuite.

This home has seen numerous upgrades over the years, including a new kitchen, flooring, appliances, vinyl siding (2021), and roof (2025)—ensuring peace of mind for years to come.

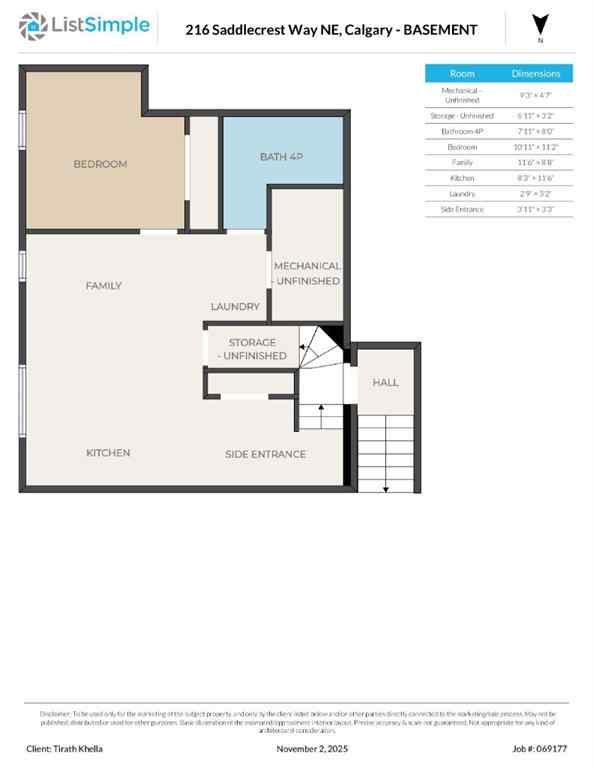
The basement features a one-bedroom illegal suite with a separate side entry and spacious living room, offering excellent potential for extended family living or additional rental income.

Step outside to a large south-facing backyard complete with a deck, BBQ gas line, and a gazebo—ideal for entertaining or relaxing on summer evenings. Additional storage sheds provide plenty of room for tools and outdoor equipment.

Located in the highly desirable community of Saddleridge, this property is just minutes from schools, playgrounds, shopping, LRT, and all major amenities—offering the perfect blend of comfort, convenience, and value. Don’t miss out—call your favourite REALTOR® today to book a private showing!

DOWNLOAD Feature sheet

ESSENTIAL
MLS®:A2269316
Price:670,998.00
Type:Residential
Sub Type:Detached
Style:2 Storey
Lot Size:3,681 sq. ft.
Levels:Two
Total Sqft:1466.5 Sqft.
RestrictionsNone Known
DOM1
INTERIOR SNAPSHOT   
Baths Full:3
Half:1
Baths Total:4
Bedrooms:4
Rooms Above:6
Flooring:Laminate
Heating:Fireplace(s), Floor Furnace, Natural Gas
Basement:Full
Suite:Yes


COMMUNITY DETAILS
Address:216 Saddlecrest Way NE, Calgary, Alberta T3J 5N2
City:Calgary
Subdivision:Saddle Ridge
County:Calgary
Province:Alberta
Postal Code:T3J 5N2
School: Schools
Housing:Housing Market
Statistics:Real Estate Statistics
EXTERIOR
Year Built:2005
Structure Type:House
Foundation:Poured Concrete
Frontage:10.36M 34`0"
Roof:Asphalt Shingle
Zoning:R-G
Construction:Vinyl Siding, Wood Frame
Parking Total:4
ROOM DIMENSIONS


Community Features: Playground, Schools Nearby, Shopping Nearby, Sidewalks
Inclusions: N/A
Lot Features: Back Yard, Level, Rectangular Lot
Parking Features: Double Garage Attached, Driveway
Patio And Porch Features: Deck



Courtesy: URBAN-REALTY.ca








Contact Information

  Big John Peterson - RE/MAX Realty Professionals
Cell: 403-244-5646
Office: 403-244-5646
(141 Reviews) full starfull starfull starfull starhalf star
Reviews
VIEW PROFILE



Question and Private Showing Requests

Book a Showing
General Question
Property Updates
Make an Offer
Buy a Property
Sell a Property
Financing infomation









Mandatory fields marked *

Information

(999) 999-9999

(weekdays 9-5pm)

Preferred Time


at

at

Security Code Calgary homes
Enter the letters below





Recent Customer Reviews
full starfull starfull starfull starfull star
We would highly recommend Big John and his team. Selling a property can be highly stressful. They alleviated much of that stress by keeping us informed throughout the whole process. Their professional advice was invaluable. We truly appreciated all of the team and thank them for their service
Rick B

full starfull starfull starfull starfull star
We had a great experience years ago when Big John was our realtor of choice. Some things have changed but, Big John was every bit as professional now as years ago, Thanks to technology, the photos, video and brochures were absolutely great! When we saw our home on the website, we wanted to buy it. The showing process was also excellent. Easy to approve a showing and easy for us to make arrangements. Hopefully, we won't need Big John's services any time soon but, we will definitely recommend him and his team to anyone that should ask. Thank you for making the experience a positive one. Best regards Jim and Leslie G.
Jim and Leslie G.


Saddle Ridge Housing Trends


Real Estate Listings: 140
Highest Price: $7,000,000.00
Lowest Priced: $1,900.00
Average Price: $611,153.91
November 7th 10:20am

Agent reviews Cell: 403-244-5646
Office: 403-244-5646

(141 Reviews)
full starfull starfull starfull starhalf star
My Reviews
Write a Review
View My Profile





Contact Big John Peterson


More Information
Make an Offer
Buy a Property
Sell a Property
General Questions
Financing Options

Saddle Ridge homes
Enter the letters below






FAQs about 216 Saddlecrest Way NE, Calgary,
Alberta, T3J 5N2

216 Saddlecrest Way NE MLS® A2269316 has an approximate size of 1,467 Sq. Ft. located in Saddle Ridge.

Nearby schools include read Schools & resources

There are 4 bedrooms and 4 bathrooms in this Residential listing at 216 Saddlecrest Way NE, MLS® A2269316.

This Residential listings is priced at $670,998.

This property is located at 216 Saddlecrest Way NE, Calgary, Alberta, T3J 5N2 in the Saddle Ridge community on the market for 1 days. View location on Google maps.

You can find new community resources, emergency phone numbers, crime statistics, and local news, similar homes & real estate information on our Saddle Ridge community resources page.














New construction 2026
Call Ginger Andrews