A2266178 - 41 Annette Landing NW, Calgary, Alberta T3R 2J7




SCHEDULE PRIVATE TOUR

We will work around your timelines. First choose the date below.





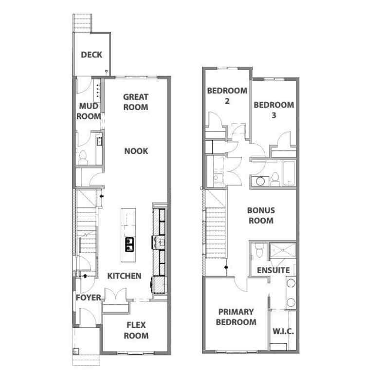
Welcome to Glacier Ridge, where timeless design meets the natural beauty of Calgary’s northwest. This exceptional paired home combines modern warmth with everyday functionality - the perfect fit for families, professionals, or anyone who values both style and substance. Step inside and you’ll immediately feel the difference. The main floor is open, bright, and designed for connection. Light oak luxury vinyl plank flooring runs throughout, setting a warm, natural tone that flows seamlessly from the foyer to the great room. The kitchen is the true centerpiece - featuring soft beige cabinetry, a natural wood island, and white quartz countertops that add a fresh, polished touch. Subtle textured backsplash tile and chrome fixtures complete the look with understated elegance. Whether you’re hosting a dinner party or enjoying a quiet morning coffee, this kitchen is built to impress. The flex room at the front of the home offers versatility - perfect for a home office or a kids playroom. The dining nook opens to the rear deck, creating effortless indoor-outdoor living. A convenient mudroom and half bath finish off a main level that feels both beautiful and practical. Upstairs, the layout is designed with real life in mind. The primary suite offers a peaceful retreat with a walk-in closet and spa-inspired ensuite featuring dual sinks and a glass-enclosed shower. The bonus room provides a second living area for family movie nights or quiet downtime. Two additional bedrooms, a full bath, and upper laundry complete this thoughtfully planned upper level. What truly sets this home apart is its separate side entrance and suite-ready basement, already roughed in for a future legal suite (subject to city approval & permits). It’s a smart investment for those looking to add flexibility, income potential, or multi-generational living options. Throughout the home, every finish has been selected for its timeless appeal - natural wood tones, soft neutrals, and polished chrome details that create a cohesive, high-end feel. It’s modern yet inviting, elegant yet livable. Located in one of Calgary’s most sought-after new communities, Glacier Ridge offers a lifestyle that’s hard to beat - surrounded by scenic pathways, future parks, and mountain views, all within easy reach of major amenities and northwest conveniences. This is more than just a beautiful home - it’s a smart move into a growing, connected community. Book your private showing today and see why life in Glacier Ridge feels like home.

DOWNLOAD Feature sheet

ESSENTIAL
MLS®:A2266178
Price:599,900.00
Type:Residential
Sub Type:Semi Detached (Half Duplex)
Style:2 Storey,Attached-Side by Side
Lot Size:2,680 sq. ft.
Levels:Two
Total Sqft:1830.3 Sqft.
RestrictionsRestrictive Covenant
DOM12
INTERIOR SNAPSHOT   
Baths Full:2
Half:1
Baths Total:3
Bedrooms:3
Rooms Above:8
Flooring:Carpet, Tile, Vinyl Plank
Heating:High Efficiency
Basement:Full
Suite:No


COMMUNITY DETAILS
Address:41 Annette Landing NW, Calgary, Alberta T3R 2J7
City:Calgary
Subdivision:Glacier Ridge
County:Calgary
Province:Alberta
Postal Code:T3R 2J7
School: Schools
Housing:Housing Market
Statistics:Real Estate Statistics
EXTERIOR
Year Built:2025
Structure Type:Duplex
Foundation:Poured Concrete
Frontage:7.35M 24`1"
Roof:Asphalt Shingle
Zoning:R-G
Construction:Vinyl Siding
Parking Total:2
ROOM DIMENSIONS


Community Features: Clubhouse, Park, Playground, Schools Nearby, Sidewalks, Street Lights, Tennis Court(s), Walking/Bike Paths
Inclusions: Appliance package to be supplied by the Builder. The purchaser may select stove and fridge at Builders supplier, and the builder will provide a $4, 000 allowance for these appliances.
Lot Features: Back Lane, Back Yard, Rectangular Lot
Parking Features: Alley Access, Off Street, Parking Pad
Patio And Porch Features: Deck



Courtesy: Royal LePage Benchmark








Contact Information

  Big John Peterson - RE/MAX Realty Professionals
Cell: 403-244-5646
Office: 403-244-5646
(141 Reviews) full starfull starfull starfull starhalf star
Reviews
VIEW PROFILE



Question and Private Showing Requests

Book a Showing
General Question
Property Updates
Make an Offer
Buy a Property
Sell a Property
Financing infomation









Mandatory fields marked *

Information

(999) 999-9999

(weekdays 9-5pm)

Preferred Time


at

at

Security Code Calgary homes
Enter the letters below





Recent Customer Reviews
full starfull starfull starfull starfull star
We would highly recommend Big John and his team. Selling a property can be highly stressful. They alleviated much of that stress by keeping us informed throughout the whole process. Their professional advice was invaluable. We truly appreciated all of the team and thank them for their service
Rick B

full starfull starfull starfull starfull star
We had a great experience years ago when Big John was our realtor of choice. Some things have changed but, Big John was every bit as professional now as years ago, Thanks to technology, the photos, video and brochures were absolutely great! When we saw our home on the website, we wanted to buy it. The showing process was also excellent. Easy to approve a showing and easy for us to make arrangements. Hopefully, we won't need Big John's services any time soon but, we will definitely recommend him and his team to anyone that should ask. Thank you for making the experience a positive one. Best regards Jim and Leslie G.
Jim and Leslie G.


Glacier Ridge Housing Trends


Real Estate Listings: 28
Highest Price: $1,065,000.00
Lowest Priced: $334,900.00
Average Price: $715,360.04
November 4th 10:00am

Agent reviews Cell: 403-244-5646
Office: 403-244-5646

(141 Reviews)
full starfull starfull starfull starhalf star
My Reviews
Write a Review
View My Profile





Contact Big John Peterson


More Information
Make an Offer
Buy a Property
Sell a Property
General Questions
Financing Options

Glacier Ridge homes
Enter the letters below






FAQs about 41 Annette Landing NW, Calgary,
Alberta, T3R 2J7

41 Annette Landing NW MLS® A2266178 has an approximate size of 1,830 Sq. Ft. located in Glacier Ridge.

Nearby schools include read Schools & resources

There are 3 bedrooms and 3 bathrooms in this Residential listing at 41 Annette Landing NW, MLS® A2266178.

This Residential listings is priced at $599,900.

This property is located at 41 Annette Landing NW, Calgary, Alberta, T3R 2J7 in the Glacier Ridge community on the market for 12 days. View location on Google maps.

You can find new community resources, emergency phone numbers, crime statistics, and local news, similar homes & real estate information on our Glacier Ridge community resources page.