A2266097 - 368 Magnolia Crescent SE, Calgary, Alberta T3M 3T3




SCHEDULE PRIVATE TOUR

We will work around your timelines. First choose the date below.





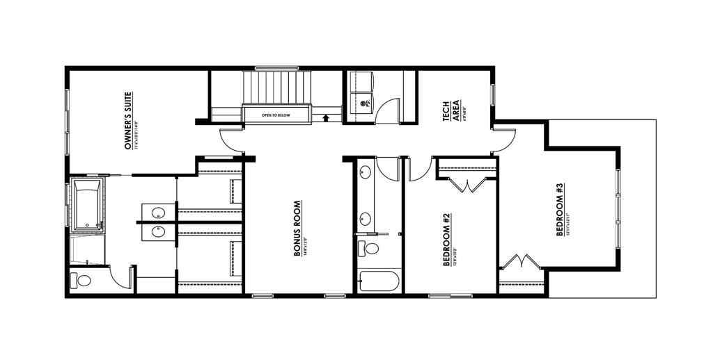
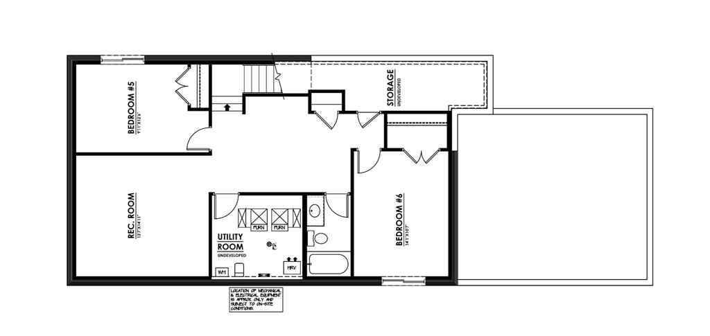
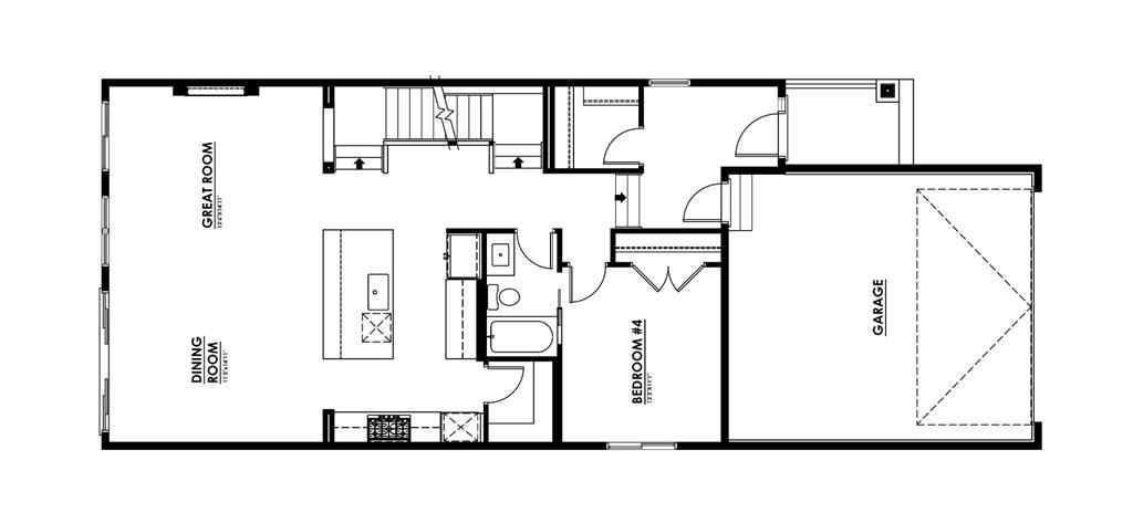
STOP THE CAR! Brand New, fully finished 2025 Jayman BUILT home on a traditional homesite, 6 Bedrooms, 4 Full Bathrooms & Prime Mahogany Lake Location! Welcome to the stunning “Charlotte 26” Signature Home, expertly crafted by Jayman BUILT, offering nearly 3,460 sq. ft. of total living space across three beautifully finished levels with a professionally finished basement—perfect for multigenerational living or rental income. Ideally situated in the prestigious lake community of Mahogany, this home offers unmatched access to parks, schools, shopping, South Health Campus, the world’s largest YMCA, and, of course, Mahogany Lake's year-round activities, including beaches, skating, and more. From the moment you enter, you'll be captivated by the quality craftsmanship and luxurious LVP flooring that flows throughout the open-concept main level. Designed for both entertaining and daily living, the spacious gourmet kitchen features gleaming granite countertops, a large central island, a walk-through pantry, and premium KitchenAid stainless steel appliances, including a 25 cu. ft. French door refrigerator with ice maker, built-in microwave, Broan cabinet hood fan, and gas cooktop. A generous dining area opens to the expansive great room with a fireplace, all bathed in natural light and extending seamlessly to your private backyard through sliding patio doors. A main floor bedroom with full 4-piece bath—featuring a passage pocket door to the main floor bedroom—offers flexibility for guests or aging family members. Upstairs, you’ll find an impressive layout totalling 1,468 sq. ft., including a centrally located bonus room, a tech area, a convenient upper laundry, two well-sized bedrooms, and a stylish 5-piece bath. The show-stopping primary suite offers a true retreat, featuring dual vanities, a makeup desk, a luxurious soaker tub, a glass shower, and a massive walk-in closet. The basement features a living area, two additional bedrooms, a full bathroom, storage and generous windows that offer abundant natural light—ideal for long-term rental or extended family use. Enjoy peace of mind with energy-efficient features, including triple-pane windows, a tankless hot water heater, 2 high-efficiency furnaces, and 10 solar panels. BONUS: This home qualifies for the CMHC Eco Plus Rebate, offering up to 25% back on mortgage insurance premiums for climate-friendly homes! Whether you're looking for an investment property, a large family home, or a flexible multigenerational layout, this home offers it all in one of Calgary’s most desirable lake communities. Don’t miss out—schedule your private showing today!

DOWNLOAD Feature sheet

ESSENTIAL
MLS®:A2266097
Price:974,900.00
Type:Residential
Sub Type:Detached
Style:2 Storey
Lot Size:3,907 sq. ft.
Levels:Two
Total Sqft:2640.21 Sqft.
RestrictionsBuilding Restriction
DOM14
INTERIOR SNAPSHOT   
Baths Full:4
Baths Total:4
Bedrooms:6
Rooms Above:9
Flooring:Carpet, Tile, Vinyl Plank
Heating:Forced Air, Natural Gas
Basement:Full
Suite:No


COMMUNITY DETAILS
Address:368 Magnolia Crescent SE, Calgary, Alberta T3M 3T3
City:Calgary
Subdivision:Mahogany
County:Calgary
Province:Alberta
Postal Code:T3M 3T3
School: Schools
Housing:Housing Market
Statistics:Real Estate Statistics
EXTERIOR
Year Built:2025
Structure Type:House
Foundation:Poured Concrete
Frontage:10.38M 34`1"
Roof:Asphalt Shingle
Zoning:R-G
Construction:Cement Fiber Board, Stone, Wood Frame
Parking Total:4
ROOM DIMENSIONS


Community Features: Clubhouse, Fishing, Lake, Park, Playground, Schools Nearby, Shopping Nearby, Sidewalks, Street Lights, Tennis Court(s), Walking/Bike Paths
Inclusions: N/A
Lot Features: Rectangular Lot
Parking Features: Concrete Driveway, Double Garage Attached
Patio And Porch Features: Front Porch



Courtesy: Jayman Realty Inc.








Contact Information

  Big John Peterson - RE/MAX Realty Professionals
Cell: 403-244-5646
Office: 403-244-5646
(141 Reviews) full starfull starfull starfull starhalf star
Reviews
VIEW PROFILE



Question and Private Showing Requests

Book a Showing
General Question
Property Updates
Make an Offer
Buy a Property
Sell a Property
Financing infomation









Mandatory fields marked *

Information

(999) 999-9999

(weekdays 9-5pm)

Preferred Time


at

at

Security Code Calgary homes
Enter the letters below





Recent Customer Reviews
full starfull starfull starfull starfull star
We would highly recommend Big John and his team. Selling a property can be highly stressful. They alleviated much of that stress by keeping us informed throughout the whole process. Their professional advice was invaluable. We truly appreciated all of the team and thank them for their service
Rick B

full starfull starfull starfull starfull star
We had a great experience years ago when Big John was our realtor of choice. Some things have changed but, Big John was every bit as professional now as years ago, Thanks to technology, the photos, video and brochures were absolutely great! When we saw our home on the website, we wanted to buy it. The showing process was also excellent. Easy to approve a showing and easy for us to make arrangements. Hopefully, we won't need Big John's services any time soon but, we will definitely recommend him and his team to anyone that should ask. Thank you for making the experience a positive one. Best regards Jim and Leslie G.
Jim and Leslie G.


Mahogany Housing Trends


Real Estate Listings: 134
Highest Price: $2,274,900.00
Lowest Priced: $1,999.00
Average Price: $702,301.20
November 5th 12:20am

Agent reviews Cell: 403-244-5646
Office: 403-244-5646

(141 Reviews)
full starfull starfull starfull starhalf star
My Reviews
Write a Review
View My Profile





Contact Big John Peterson


More Information
Make an Offer
Buy a Property
Sell a Property
General Questions
Financing Options

Mahogany homes
Enter the letters below






FAQs about 368 Magnolia Crescent SE, Calgary,
Alberta, T3M 3T3

368 Magnolia Crescent SE MLS® A2266097 has an approximate size of 2,640 Sq. Ft. located in Mahogany.

Nearby schools include read Schools & resources

There are 6 bedrooms and 4 bathrooms in this Residential listing at 368 Magnolia Crescent SE, MLS® A2266097.

This Residential listings is priced at $974,900.

This property is located at 368 Magnolia Crescent SE, Calgary, Alberta, T3M 3T3 in the Mahogany community on the market for 14 days. View location on Google maps.

You can find new community resources, emergency phone numbers, crime statistics, and local news, similar homes & real estate information on our Mahogany community resources page.