A2263211 - Unit #29 420069 Range Road 284 , Rural Ponoka County, Alberta T4J 1R3




SCHEDULE PRIVATE TOUR

We will work around your timelines. First choose the date below.





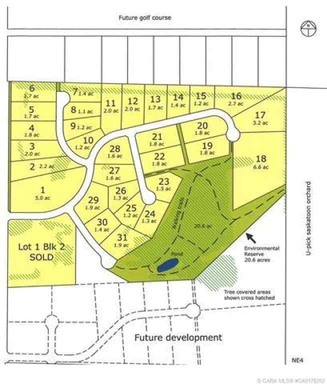
Welcome to one of Gull Lake's perhaps finest country home development. Grandview Estates. Boasting an upscale architecturally controlled subdivision that is intertwined amongst 30 acres of environmental reserve featuring established walking trails, abundant wildlife, local history. The view is so amazing that it is better described as an experience. Every lot boasts a spectacular view of the lake; some views encompass the entire length of Gull Lake. Imagine closing every single day with yet another uniquely pleasing sunset. Boat access is 5 minutes away at the Raymond Shores public boat launch. Taxes have not been assessed yet. Grandview Estates is a 31 lot acreage subdivision with acreages ranging from 1 to 6 acres in size and prices ranging for $85,000 to $275,000

DOWNLOAD Feature sheet

ESSENTIAL
MLS®:A2263211
Price:150,000.00
Type:Land
Sub Type:Residential Land
Lot Size:89,733 sq. ft.
RestrictionsArchitectural Guidelines
DOM28
INTERIOR SNAPSHOT   


COMMUNITY DETAILS
Address:Unit #29 420069 Range Road 284 , Rural Ponoka County, Alberta T4J 1R3
City:Rural Ponoka County
Subdivision:Grandview Estates
County:Ponoka County
Province:Alberta
Postal Code:T4J 1R3
School: Schools
Housing:Housing Market
Statistics:Real Estate Statistics
EXTERIOR
Water Source:Well
Zoning:CR
ROOM DIMENSIONS


Community Features: Park
Inclusions: none



Courtesy: Royal LePage Lifestyles Realty








Contact Information

  Big John Peterson - RE/MAX Realty Professionals
Cell: 403-244-5646
Office: 403-244-5646
(141 Reviews) full starfull starfull starfull starhalf star
Reviews
VIEW PROFILE



Question and Private Showing Requests

Book a Showing
General Question
Property Updates
Make an Offer
Buy a Property
Sell a Property
Financing infomation









Mandatory fields marked *

Information

(999) 999-9999

(weekdays 9-5pm)

Preferred Time


at

at

Security Code Calgary homes
Enter the letters below





Recent Customer Reviews
full starfull starfull starfull starfull star
We would highly recommend Big John and his team. Selling a property can be highly stressful. They alleviated much of that stress by keeping us informed throughout the whole process. Their professional advice was invaluable. We truly appreciated all of the team and thank them for their service
Rick B

full starfull starfull starfull starfull star
We had a great experience years ago when Big John was our realtor of choice. Some things have changed but, Big John was every bit as professional now as years ago, Thanks to technology, the photos, video and brochures were absolutely great! When we saw our home on the website, we wanted to buy it. The showing process was also excellent. Easy to approve a showing and easy for us to make arrangements. Hopefully, we won't need Big John's services any time soon but, we will definitely recommend him and his team to anyone that should ask. Thank you for making the experience a positive one. Best regards Jim and Leslie G.
Jim and Leslie G.


Grandview Estates Housing Trends


Real Estate Listings: 10
Highest Price: $250,000.00
Lowest Priced: $85,000.00
Average Price: $160,680.00
Land: 10
November 5th 1:40am

Agent reviews Cell: 403-244-5646
Office: 403-244-5646

(141 Reviews)
full starfull starfull starfull starhalf star
My Reviews
Write a Review
View My Profile





Contact Big John Peterson


More Information
Make an Offer
Buy a Property
Sell a Property
General Questions
Financing Options

Grandview Estates homes
Enter the letters below






FAQs about Unit #29 420069 Range Road 284 , Rural Ponoka County,
Alberta, T4J 1R3

Unit #29 420069 Range Road 284 MLS® A2263211 has an approximate size of 0 Sq. Ft. located in Grandview Estates.

Nearby schools include read Schools & resources

There are 0 bedrooms and 0 bathrooms in this Land listing at Unit #29 420069 Range Road 284 , MLS® A2263211.

This Land listings is priced at $150,000.

This property is located at Unit #29 420069 Range Road 284 , Rural Ponoka County, Alberta, T4J 1R3 in the Grandview Estates community on the market for 28 days. View location on Google maps.

You can find new community resources, emergency phone numbers, crime statistics, and local news, similar homes & real estate information on our Grandview Estates community resources page.