A2263194 - 7024-7026 30 Street SE, Calgary, Alberta t2c1j9




SCHEDULE PRIVATE TOUR

We will work around your timelines. First choose the date below.





For Sub-Sublease / Short-Term Lease: Approximately 5,073 sq. ft. industrial bay with yard space and direct exposure to Barlow Trail SE. The property is located in Foothills Industrial Park near Barlow Trail SE and 72 Avenue SE.
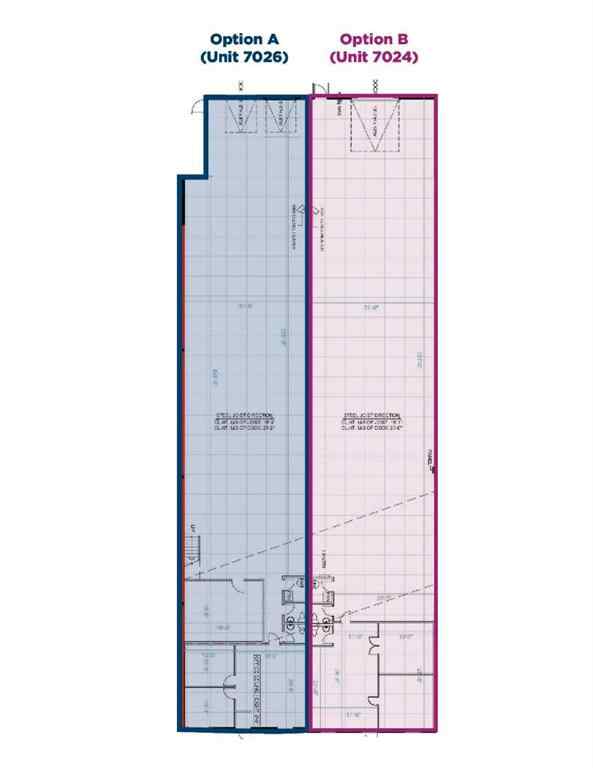
Important Note: Please refer to the floor plan in the images. Either Option A (Unit 7026) or Option B (Unit 7024) is available, but not both contiguously.
Option A (Unit 7026) has a total area of approximately 5,703 sq. ft., including about 1,110 sq. ft. of office space and 3,973 sq. ft. of warehouse space. The office area consists of a front reception area, two private offices, one warehouse office, and two washrooms. The warehouse area features 18 ft clear height, two dock doors (8 ft W x 10 ft H), and yard space at the rear.
Option B (Unit 7024) has a total area of approximately 5,073 sq. ft., with about 950 sq. ft. of office space and 4,123 sq. ft. of warehouse space. The office area includes a front reception/showroom, two private offices, and two washrooms. The warehouse features 18 ft clear height, one dock loading door (12 ft W x 14 ft H) with a 40,000 lb ramp, and yard space at the rear.
Both bays have a total power supply of 300 amps (to be verified) and access to a large truck marshalling area that accommodates 53 ft trailers. The monthly gross rent is estimated $7,500 plus utilities for either Option A or Option B. The Sub-Sublease term expires on September 28, 2027. Shorter terms available. Availability is negotiable.

DOWNLOAD Feature sheet

ESSENTIAL
MLS®:A2263194
Price:7,500.00
Type:Commercial
Sub Type:Industrial
RestrictionsCall Lister
DOM27
INTERIOR SNAPSHOT   
Sq Ft:5,073


COMMUNITY DETAILS
Address:7024-7026 30 Street SE, Calgary, Alberta t2c1j9
City:Calgary
Subdivision:Foothills
County:Calgary
Province:Alberta
Postal Code:t2c1j9
School: Schools
Housing:Housing Market
Statistics:Real Estate Statistics
EXTERIOR
Year Built:1976
Structure Type:Industrial
ROOM DIMENSIONS


Inclusions: N/A



Courtesy: CDN Global Advisors Ltd.








Contact Information

  Big John Peterson - RE/MAX Realty Professionals
Cell: 403-244-5646
Office: 403-244-5646
(141 Reviews) full starfull starfull starfull starhalf star
Reviews
VIEW PROFILE



Question and Private Showing Requests

Book a Showing
General Question
Property Updates
Make an Offer
Buy a Property
Sell a Property
Financing infomation









Mandatory fields marked *

Information

(999) 999-9999

(weekdays 9-5pm)

Preferred Time


at

at

Security Code Calgary homes
Enter the letters below





Recent Customer Reviews
full starfull starfull starfull starfull star
We would highly recommend Big John and his team. Selling a property can be highly stressful. They alleviated much of that stress by keeping us informed throughout the whole process. Their professional advice was invaluable. We truly appreciated all of the team and thank them for their service
Rick B

full starfull starfull starfull starfull star
We had a great experience years ago when Big John was our realtor of choice. Some things have changed but, Big John was every bit as professional now as years ago, Thanks to technology, the photos, video and brochures were absolutely great! When we saw our home on the website, we wanted to buy it. The showing process was also excellent. Easy to approve a showing and easy for us to make arrangements. Hopefully, we won't need Big John's services any time soon but, we will definitely recommend him and his team to anyone that should ask. Thank you for making the experience a positive one. Best regards Jim and Leslie G.
Jim and Leslie G.


Foothills Housing Trends


November 4th 1:00pm

Agent reviews Cell: 403-244-5646
Office: 403-244-5646

(141 Reviews)
full starfull starfull starfull starhalf star
My Reviews
Write a Review
View My Profile





Contact Big John Peterson


More Information
Make an Offer
Buy a Property
Sell a Property
General Questions
Financing Options

Foothills homes
Enter the letters below






FAQs about 7024-7026 30 Street SE, Calgary,
Alberta, t2c1j9

7024-7026 30 Street SE MLS® A2263194 has an approximate size of 0 Sq. Ft. located in Foothills.

Nearby schools include read Schools & resources

There are 0 bedrooms and 0 bathrooms in this Commercial listing at 7024-7026 30 Street SE, MLS® A2263194.

This Commercial listings is priced at $7,500.

This property is located at 7024-7026 30 Street SE, Calgary, Alberta, t2c1j9 in the Foothills community on the market for 27 days. View location on Google maps.

You can find new community resources, emergency phone numbers, crime statistics, and local news, similar homes & real estate information on our Foothills community resources page.