A2261653 - 54 Arbour Lake Court NW, Calgary, Alberta T3G 0H6




SCHEDULE PRIVATE TOUR

We will work around your timelines. First choose the date below.





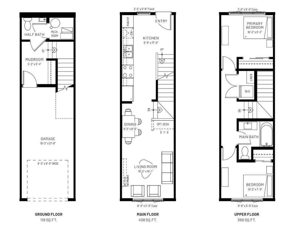
Step into this beautifully designed, newly built 3-level townhome by Cantiro—offering the perfect blend of comfort, style, and nature. Located in the sought-after lake community of Arbour Lake, this 2-bedroom, 1.5-bath home backs directly onto peaceful green space and showcases expansive triple-paned windows that flood each level with natural light. The entry level features a welcoming mudroom, a convenient two-piece bathroom, and access to the single attached garage with an oversized overhead door. On the main floor, enjoy a bright and open layout with spacious living and dining areas and a contemporary kitchen—ideal for everyday living and entertaining. Upstairs, you’ll find two bedrooms, a full four-piece bathroom, and upper-floor laundry for added convenience. With luxury vinyl plank flooring, quartz countertops, professionally curated interior finishes, and rough-ins for both air conditioning and a BBQ gas line, this home is move-in ready and waiting for your personal touch. Enjoy low-maintenance living with exclusive access to year-round lake amenities—all in a peaceful setting that backs onto green space. ( PLEASE note* photos are of similar models but there are not an exact replication of the home).

DOWNLOAD Feature sheet

ESSENTIAL
MLS®:A2261653
Price:439,108.89
Type:Residential
Sub Type:Row/Townhouse
Style:3 (or more) Storey
Association Fee:148 Common Area Maintenance,Insurance,Maintenance Grounds,Professional Management,Snow Removal
Levels:Three Or More
Total Sqft:814 Sqft.
RestrictionsNone Known
DOM33
INTERIOR SNAPSHOT   
Baths Full:1
Half:1
Baths Total:2
Bedrooms:2
Rooms Above:5
Flooring:Carpet, Vinyl Plank
Heating:Forced Air, Natural Gas
Basement:None
Suite:No


COMMUNITY DETAILS
Address:54 Arbour Lake Court NW, Calgary, Alberta T3G 0H6
City:Calgary
Subdivision:Arbour Lake
County:Calgary
Province:Alberta
Postal Code:T3G 0H6
School: Schools
Housing:Housing Market
Statistics:Real Estate Statistics
EXTERIOR
Year Built:2026
Structure Type:Five Plus
Foundation:Poured Concrete
Roof:Asphalt Shingle
Zoning:TBD
Construction:Cement Fiber Board, Mixed, Wood Frame
Parking Total:1
ROOM DIMENSIONS


Community Features: Clubhouse, Fishing, Lake, Park, Schools Nearby, Shopping Nearby, Sidewalks, Street Lights, Tennis Court(s), Walking/Bike Paths
Inclusions: NA
Lot Features: Backs on to Park/Green Space
Parking Features: Single Garage Attached
Patio And Porch Features: Patio



Courtesy: KIC Realty








Contact Information

  Big John Peterson - RE/MAX Realty Professionals
Cell: 403-244-5646
Office: 403-244-5646
(141 Reviews) full starfull starfull starfull starhalf star
Reviews
VIEW PROFILE



Question and Private Showing Requests

Book a Showing
General Question
Property Updates
Make an Offer
Buy a Property
Sell a Property
Financing infomation









Mandatory fields marked *

Information

(999) 999-9999

(weekdays 9-5pm)

Preferred Time


at

at

Security Code Calgary homes
Enter the letters below

VirtualTour

3d Image





Recent Customer Reviews
full starfull starfull starfull starfull star
We would highly recommend Big John and his team. Selling a property can be highly stressful. They alleviated much of that stress by keeping us informed throughout the whole process. Their professional advice was invaluable. We truly appreciated all of the team and thank them for their service
Rick B

full starfull starfull starfull starfull star
We had a great experience years ago when Big John was our realtor of choice. Some things have changed but, Big John was every bit as professional now as years ago, Thanks to technology, the photos, video and brochures were absolutely great! When we saw our home on the website, we wanted to buy it. The showing process was also excellent. Easy to approve a showing and easy for us to make arrangements. Hopefully, we won't need Big John's services any time soon but, we will definitely recommend him and his team to anyone that should ask. Thank you for making the experience a positive one. Best regards Jim and Leslie G.
Jim and Leslie G.


Arbour Lake Housing Trends


Real Estate Listings: 42
Highest Price: $2,099,500.00
Lowest Priced: $180,000.00
Average Price: $603,270.31
November 4th 2:00pm

Agent reviews Cell: 403-244-5646
Office: 403-244-5646

(141 Reviews)
full starfull starfull starfull starhalf star
My Reviews
Write a Review
View My Profile





Contact Big John Peterson


More Information
Make an Offer
Buy a Property
Sell a Property
General Questions
Financing Options

Arbour Lake homes
Enter the letters below






FAQs about 54 Arbour Lake Court NW, Calgary,
Alberta, T3G 0H6

54 Arbour Lake Court NW MLS® A2261653 has an approximate size of 814 Sq. Ft. located in Arbour Lake.

Nearby schools include read Schools & resources

There are 2 bedrooms and 2 bathrooms in this Residential listing at 54 Arbour Lake Court NW, MLS® A2261653.

This Residential listings is priced at $439,109.

This property is located at 54 Arbour Lake Court NW, Calgary, Alberta, T3G 0H6 in the Arbour Lake community on the market for 33 days. View location on Google maps.

You can find new community resources, emergency phone numbers, crime statistics, and local news, similar homes & real estate information on our Arbour Lake community resources page.