A2249607 - Unit #103 10104 97 Avenue , Grande Prairie, Alberta T8V 7X6




SCHEDULE PRIVATE TOUR

We will work around your timelines. First choose the date below.





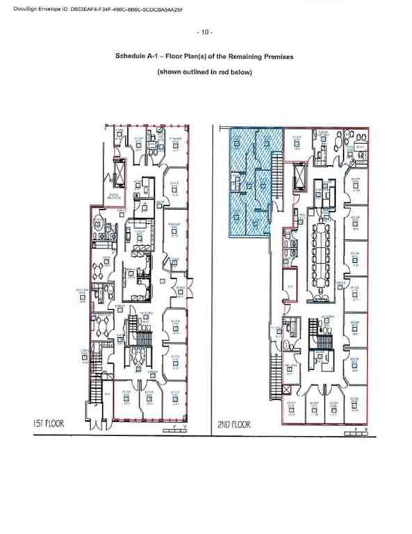
Exceptional office space available in the heart of the downtown central business district. This well-designed property offers both a main floor and upper level, featuring multiple private offices, a spacious boardroom, and an inviting open reception area. The layout is further enhanced with two separate washrooms (one on each level), two kitchenettes, and a dedicated mail room, providing everything needed for a functional and professional workspace. With its central location, versatile design, and abundance of amenities, this property is ideally suited for professional services, corporate offices, or businesses seeking a strong downtown presence. Additional Rent Includes taxes & condo fees. $6,251.36+ base rent $13,561.67+ GST. Tenant is responsible for utilities.

DOWNLOAD Feature sheet

ESSENTIAL
MLS®:A2249607
Price:20.00
Type:Commercial
Sub Type:Office
RestrictionsCondo/Strata Approval,Landlord Approval
DOM69
INTERIOR SNAPSHOT   
Sq Ft:8,137


COMMUNITY DETAILS
Address:Unit #103 10104 97 Avenue , Grande Prairie, Alberta T8V 7X6
City:Grande Prairie
Subdivision:Central Business District
County:Grande Prairie
Province:Alberta
Postal Code:T8V 7X6
School: Schools
Housing:Housing Market
Statistics:Real Estate Statistics
EXTERIOR
Year Built:2001
Structure Type:Low Rise (2-4 stories)
ROOM DIMENSIONS


Inclusions: N/A



Courtesy: RE/MAX Grande Prairie








Contact Information

  Big John Peterson - RE/MAX Realty Professionals
Cell: 403-244-5646
Office: 403-244-5646
(141 Reviews) full starfull starfull starfull starhalf star
Reviews
VIEW PROFILE



Question and Private Showing Requests

Book a Showing
General Question
Property Updates
Make an Offer
Buy a Property
Sell a Property
Financing infomation









Mandatory fields marked *

Information

(999) 999-9999

(weekdays 9-5pm)

Preferred Time


at

at

Security Code Calgary homes
Enter the letters below





Recent Customer Reviews
full starfull starfull starfull starfull star
We would highly recommend Big John and his team. Selling a property can be highly stressful. They alleviated much of that stress by keeping us informed throughout the whole process. Their professional advice was invaluable. We truly appreciated all of the team and thank them for their service
Rick B

full starfull starfull starfull starfull star
We had a great experience years ago when Big John was our realtor of choice. Some things have changed but, Big John was every bit as professional now as years ago, Thanks to technology, the photos, video and brochures were absolutely great! When we saw our home on the website, we wanted to buy it. The showing process was also excellent. Easy to approve a showing and easy for us to make arrangements. Hopefully, we won't need Big John's services any time soon but, we will definitely recommend him and his team to anyone that should ask. Thank you for making the experience a positive one. Best regards Jim and Leslie G.
Jim and Leslie G.


Central Business District Housing Trends


Real Estate Listings: 6
Highest Price: $283,000.00
Lowest Priced: $148,900.00
Average Price: $235,600.00
November 4th 10:00pm

Agent reviews Cell: 403-244-5646
Office: 403-244-5646

(141 Reviews)
full starfull starfull starfull starhalf star
My Reviews
Write a Review
View My Profile





Contact Big John Peterson


More Information
Make an Offer
Buy a Property
Sell a Property
General Questions
Financing Options

Central Business District homes
Enter the letters below






FAQs about Unit #103 10104 97 Avenue , Grande Prairie,
Alberta, T8V 7X6

Unit #103 10104 97 Avenue MLS® A2249607 has an approximate size of 0 Sq. Ft. located in Central Business District.

Nearby schools include read Schools & resources

There are 0 bedrooms and 0 bathrooms in this Commercial listing at Unit #103 10104 97 Avenue , MLS® A2249607.

This Commercial listings is priced at $20.

This property is located at Unit #103 10104 97 Avenue , Grande Prairie, Alberta, T8V 7X6 in the Central Business District community on the market for 69 days. View location on Google maps.

You can find new community resources, emergency phone numbers, crime statistics, and local news, similar homes & real estate information on our Central Business District community resources page.