A2245278 - Unit #350 9816 Hardin Street , Fort McMurray, Alberta T9H 4K3




SCHEDULE PRIVATE TOUR

We will work around your timelines. First choose the date below.





Prime Office & Medical Space for Lease – Hardin Street Building, Fort McMurray

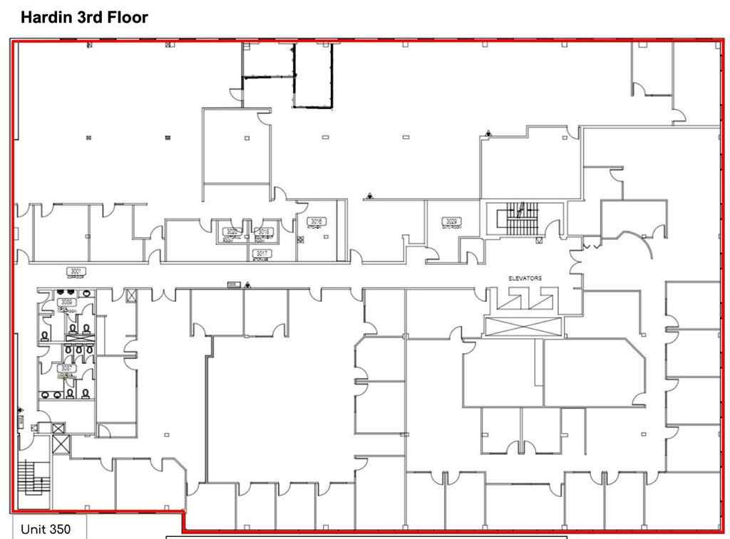
Discover a premier leasing opportunity in the heart of Fort McMurray’s downtown core at the Hardin Street Building. This modern and professionally managed property offers a total of 48,461 square feet of premium commercial space across two full floors—ideal for a wide range of uses including professional office, medical, wellness, education, and studio-based businesses. Each floor offers approximately 20,908 square feet, with flexible demising options available to accommodate both large single-tenant users and smaller operators.

The building features full air conditioning, modern improvements, two elevators, secured access, and 24/7 camera surveillance. Tenants benefit from ample surface parking and immediate access to major routes including Highway 63 and Memorial Drive, along with close proximity to retail, dining, and other service amenities. The landlord is open to working with tenants on custom build-outs and space planning to meet unique business needs. Estimated operating costs are $15.38 per square foot, inclusive of utilities. Flexible lease terms and tenant incentives are available and negotiable, terms dependent.

Current availability includes the full second and third floors, each offering 20,908 square feet of contiguous and demisable space. Possession is available immediately or on a flexible basis. Whether you're establishing your presence or expanding your operations, the Hardin Street Building provides a high-exposure, adaptable environment that supports long-term business success.

DOWNLOAD Feature sheet

ESSENTIAL
MLS®:A2245278
Price:20.00
Type:Commercial
Sub Type:Office
Lot Size:23,374 sq. ft.
Building Name:Hardin Street Building
RestrictionsSee Remarks
DOM95
INTERIOR SNAPSHOT   
Sq Ft:20,908


COMMUNITY DETAILS
Address:Unit #350 9816 Hardin Street , Fort McMurray, Alberta T9H 4K3
City:Fort McMurray
Subdivision:Downtown
County:Wood Buffalo
Province:Alberta
Postal Code:T9H 4K3
School: Schools
Housing:Housing Market
Statistics:Real Estate Statistics
EXTERIOR
Year Built:1984
Structure Type:Office
Zoning:CBD1
ROOM DIMENSIONS


Inclusions: N/A



Courtesy: COLDWELL BANKER UNITED








Contact Information

  Big John Peterson - RE/MAX Realty Professionals
Cell: 403-244-5646
Office: 403-244-5646
(141 Reviews) full starfull starfull starfull starhalf star
Reviews
VIEW PROFILE



Question and Private Showing Requests

Book a Showing
General Question
Property Updates
Make an Offer
Buy a Property
Sell a Property
Financing infomation









Mandatory fields marked *

Information

(999) 999-9999

(weekdays 9-5pm)

Preferred Time


at

at

Security Code Calgary homes
Enter the letters below





Recent Customer Reviews
full starfull starfull starfull starfull star
We would highly recommend Big John and his team. Selling a property can be highly stressful. They alleviated much of that stress by keeping us informed throughout the whole process. Their professional advice was invaluable. We truly appreciated all of the team and thank them for their service
Rick B

full starfull starfull starfull starfull star
We had a great experience years ago when Big John was our realtor of choice. Some things have changed but, Big John was every bit as professional now as years ago, Thanks to technology, the photos, video and brochures were absolutely great! When we saw our home on the website, we wanted to buy it. The showing process was also excellent. Easy to approve a showing and easy for us to make arrangements. Hopefully, we won't need Big John's services any time soon but, we will definitely recommend him and his team to anyone that should ask. Thank you for making the experience a positive one. Best regards Jim and Leslie G.
Jim and Leslie G.


Downtown Housing Trends


Real Estate Listings: 65
Highest Price: $5,500,000.00
Lowest Priced: $39,900.00
Average Price: $287,803.08
Land: 2
November 5th 7:00am

Agent reviews Cell: 403-244-5646
Office: 403-244-5646

(141 Reviews)
full starfull starfull starfull starhalf star
My Reviews
Write a Review
View My Profile





Contact Big John Peterson


More Information
Make an Offer
Buy a Property
Sell a Property
General Questions
Financing Options

Downtown homes
Enter the letters below






FAQs about Unit #350 9816 Hardin Street , Fort McMurray,
Alberta, T9H 4K3

Unit #350 9816 Hardin Street MLS® A2245278 has an approximate size of 0 Sq. Ft. located in Downtown .

Nearby schools include read Schools & resources

There are 0 bedrooms and 0 bathrooms in this Commercial listing at Unit #350 9816 Hardin Street , MLS® A2245278.

This Commercial listings is priced at $20.

This property is located at Unit #350 9816 Hardin Street , Fort McMurray, Alberta, T9H 4K3 in the Downtown community on the market for 95 days. View location on Google maps.

You can find new community resources, emergency phone numbers, crime statistics, and local news, similar homes & real estate information on our Downtown community resources page.